Construction

We will upddate the page weekly with whats under construction.

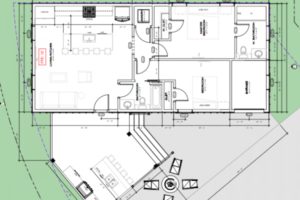
Site 90

Builder: Dave Morace

1,079 sq'

Site 66

Builder: Dave Morace

Tiki Bar